Двухкомнатная квартира 54,47 м2 по ул. Всеволожский район Бугры, Тихая улица,1 за 7952620 руб.

Двухкомнатная квартира по ул. Всеволожский район, Бугры, Тихая улица,1 в Санкт-Петербурге
Цена 7 952 620 р. (146 000 р./м2)
Подать заявку на ипотеку
Адрес Всеволожский район, Бугры, Тихая улица,1
Этаж 16/17
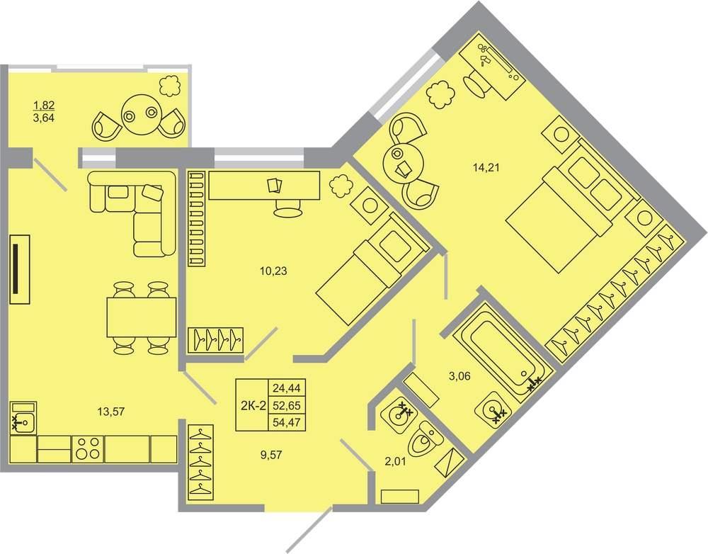
Площадь общая 54,47 м2, жилая 24,44 м2, кухни 13,57 м2
Кол-во комнат Двухкомнатная
Продается 2-комн. квартира, площадью 54.47 м2 в монолитно-кирпичной новостройке в 15 мин. транспортом от м. Девяткино. Возможен вариант покупки с использованием ипотечных средств, есть рассрочка, возможна покупка с использованием материнского капитала. Жилая площадь 24.44 м2, кухня 13.57 м2, чистовая отделка, комнаты изолированные, балконов - 1. Квартира располагается на 16 этаже 17-этажного дома в ЖК Стороны света-2. Застройщик - ГК Прок, сдача дома - I квартал 2027 года, высота потолков 2.54 м. Инфраструктура: детские площадки, спортивные площадки, места для отдыха. ЖК комфорт-класса "Стороны света-2 строится в г. Бугры Ленинградской области, прямо на границе с Санкт-Петербургом. Мечта о спокойной жизни вблизи северной столицы стала еще реальнее. Акция: 1-к квартиры по цене студии от 4,2 млн. рублей! Отделка в подарок! Программа рассрочки «Фиксированный ежемесячный платеж» для строящегося ЖК "Стороны света-2"! Первый взнос -25% от стоимости квартиры. Оплачивается при заключении Договора; Ежемесячно вносится фиксированная сумма (35 000 рублей за студию и 1-к квартиру; 45 000 рублей - за 2-к и 3-к квартиры) ; Остаток вносится до 01.12.2026 года. Программа рассрочки «3 платежа» для строящегося ЖК "Стороны света-2"! Первый взнос -25% от стоимости квартиры. Оплачивается при заключении Договора; Платеж 35% от стоимости квартиры вносится через 6 месяцев; Остаток 40% вносится до 01.12.2026 года. График работы отдела продаж: ПН-ЧТ: с 10: 00 до 18: 00 ПТ: с 10: 00 до 17: 00 СБ-ВС: выходные. От ЖК ходит общественный транспорт до ст. метро «Девяткино», «пр. Просвещения» и «Парнас». Есть 2 удобных выезда на КАД, развитая система наземного транспорта. Ж/Д станция «Девяткино», автовокзал «Северный» в 15 минутах езды. Аккредитованные банки: ВТБ, Банк ДОМ. РФ, Промсвязьбанк, Ак Барс Банк, Альфа-Банк, СберБанк, Абсолют Банк, Банк «УБРиР», Россельхозбанк, Банк «Санкт-Петербург, Совкомбанк. Позвоните и узнайте условия покупки прямо сейчас!
Описание дома
Этажность дома 17
Объявление № 19994317
Дата подачи:
10 ноября 2024 г. 9:58
Дата обновления:
20 октября 2025 г. 5:28
Просмотров 24 Хотите продать быстрее?

Продавец
Отдел продаж
Показать номер телефона
Пожаловаться
Комментарии:
Добавить